Jean-Michel Fradkin + Séverin Perreaut architectes
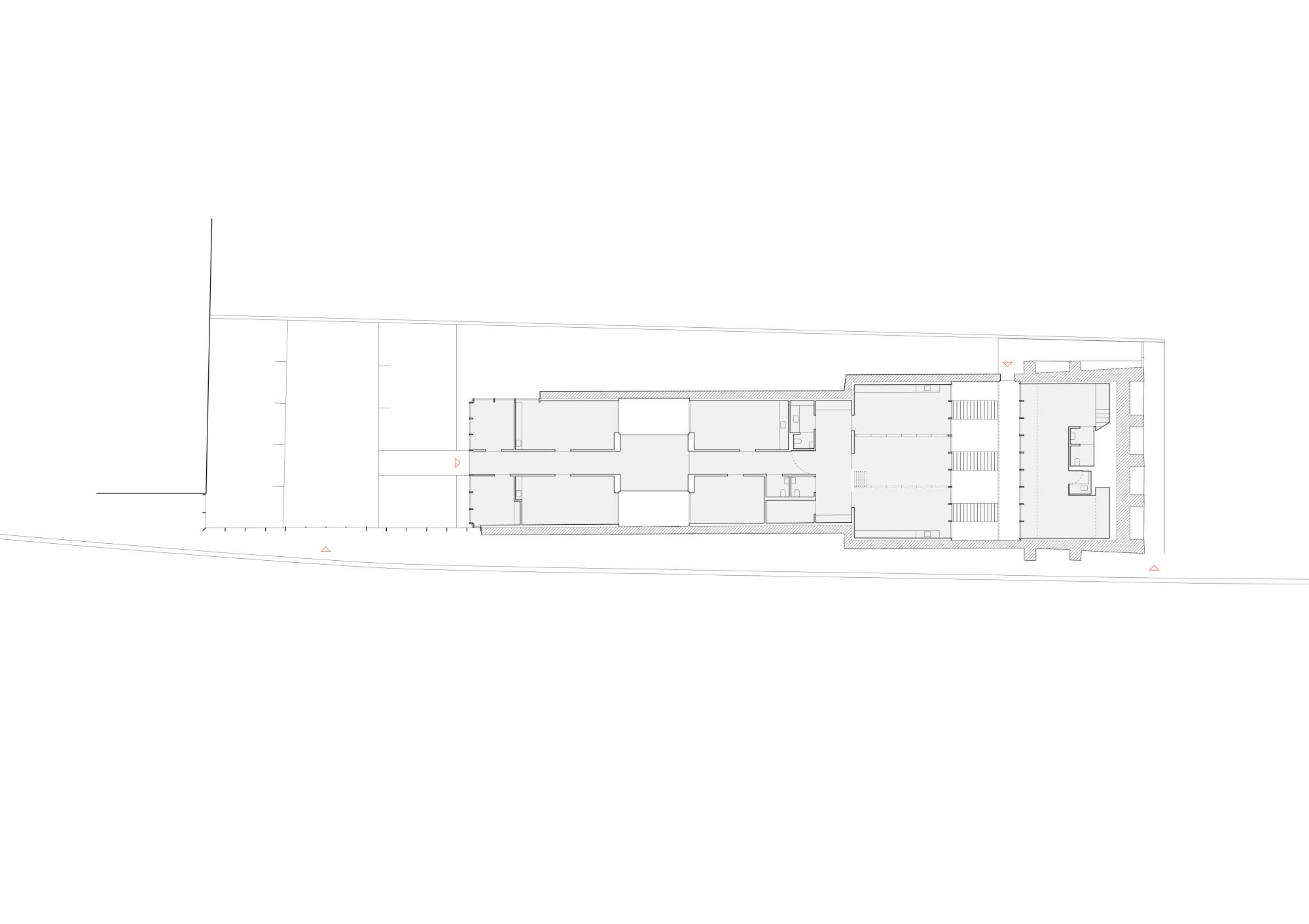
Transformation d'un ancien stand de tir militaire en agence d'architecture et cabinet médical - Bourg-en-Bresse (Ain)
Architecte mandataire : LMO
Crédits Photos : LMO