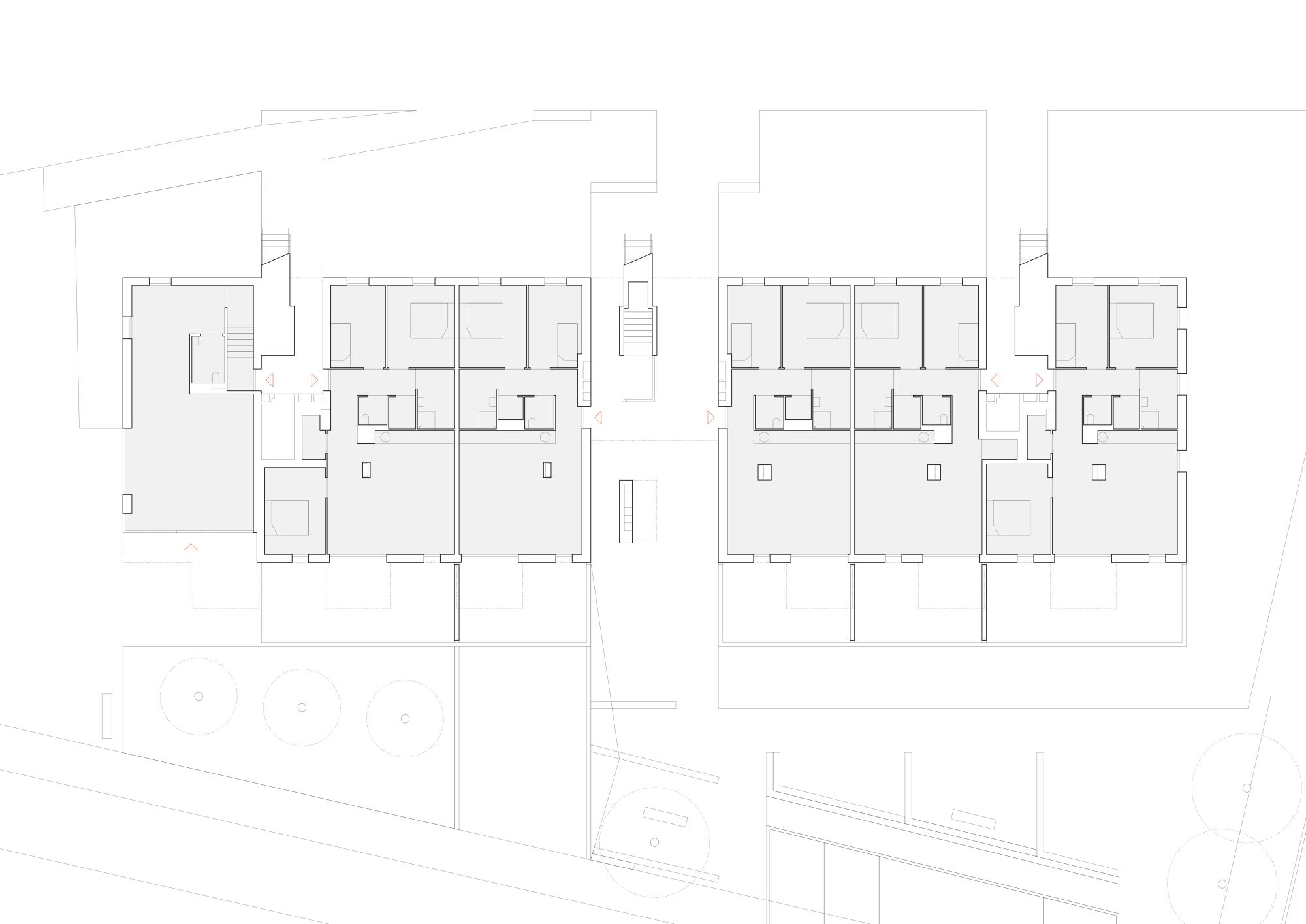
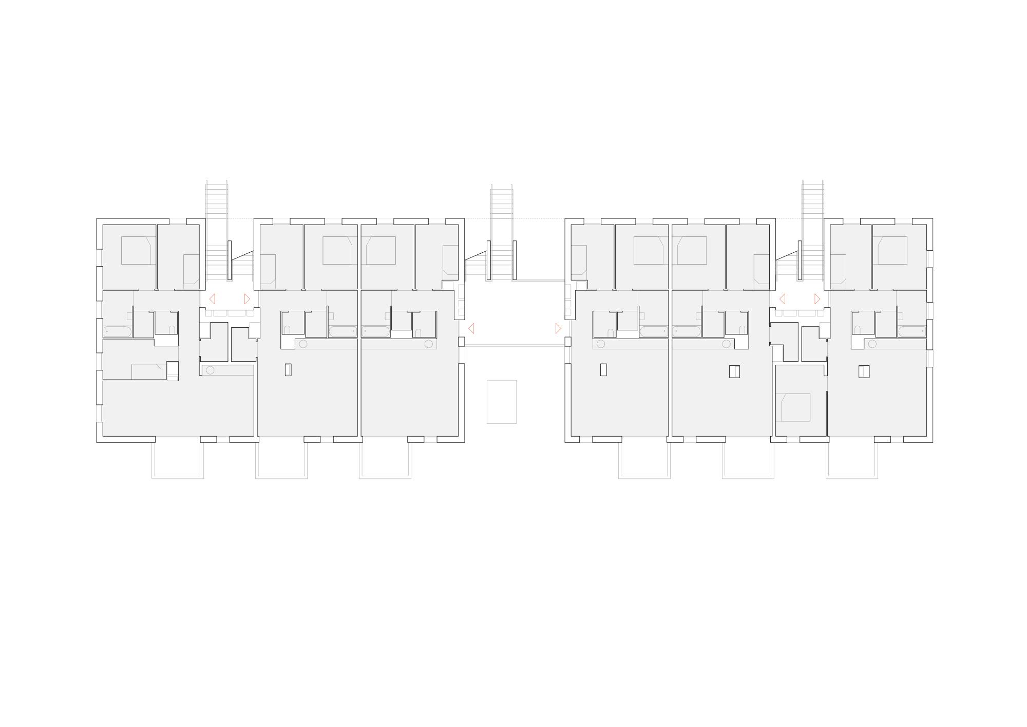
Jean-Michel Fradkin + Séverin Perreaut architectes
18 Logements locatifs et un commerce - Saint-Denis-Lès-Bourg (Ain)
Architecte mandataire : LMO
Crédits Photos : LMO & Sarah Duhalde